(EDITOR’S NOTE: This article comes from Saul Svirplys, a PhD candidate in Geography University of Ottawa. Svirplys blogs at Mid-Century Modern and 1970s-Era Ottawa, where this piece originally appeared. You can click on any image to enlarge.)
Located south of Hazeldean Road east of Stittsville Main Street is a very special “adult-lifestyle” neighbourhood begun in the late 1970s. The original phases of Amberwood Village consist of a series of houses built in clusters along the edges of the Amberwood Golf Course.
The development was originally built by a company called Jaric Developments Ltd. The architect of this original portion of the area was W.G. Mohaupt – who also designed the “courtyard singles” in Hunt Club (see my old post Favourite Plans South and scroll down to see these designs) – and also used to design houses for Minto.

The clusters of attached houses are grouped on dead-end lanes and units are attached is a variety of arrangements. Some designs have an attached garage, while others have detached garages clustered together with others. The result is a very interesting streetscape with a lot of open space between units.

Image courtesy of Google Maps.

Some phases of the development have detached houses intermixed with the attached units.

Below is an early version of the master plan for the whole area. The cluster houses are shown on the left side of this plan, and it looks as though they were supposed to be surrounded by detached houses. Eventually these areas were built with clusters of bungalow townhouses. “Block B” shown above was built in the lower left portion of this plan – an area also earmarked for detached houses. The right side of the plan (the south side) was built pretty-much as planned with detached houses.
Here’s an in interview with John Watson, the architect of the golf course. The first few questions include a discussion about how they dealt with beaver dams and high water levels on the site.
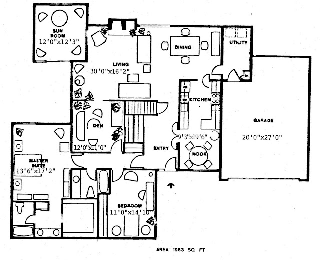
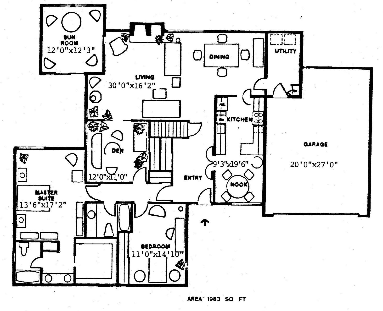
The wide variety of designs could be attached in various different arrangements or be built fully detached. Below are all of the designs that I have on file.
The exteriors have a great contemporary look with wood facades and prominent roof lines. Inside, the designs have open concept living spaces with large windows, sun rooms, and a handful even have sunken rooms. Some designs have full basements while others (the older units I believe) have crawl spaces and main floor storage/utility rooms.
Below is an example of the different arrangements possible depending on the location of the garage.










































